Do sprzedania lokal mieszkalny położony w Lubaniu przy ul. Hutniczej
 
		Lubań, dnia 28 lipca 2025 roku
GGNiR.6840.8.1.2025
O G Ł O S Z E N I E
Na podstawie art. 37 ust.1, art. 38 ust.1, ust.2, art. 40 ust.1 pkt 1), ust.3 ustawy z dnia 21 sierpnia 1997 r. o gospodarce nieruchomościami (Dz.U. z 2024 roku, poz. 1145 ze zm.), § 13 Rozporządzenia Rady Ministrów z dnia 14 września 2004 roku w sprawie sposobu i trybu przeprowadzania przetargów oraz rokowań na zbycie nieruchomości (Dz.U. z 2021 roku, poz. 2213 ze zm.), §3 ust. 2 pkt 1) Uchwały Nr XXXII/221/2020 Rady Miasta Lubań z dnia 30 grudnia 2020 roku w sprawie zasad gospodarowania nieruchomościami stanowiącymi własność Gminy Miejskiej Lubań (Dz. Urz. Woj. Doln. z 2021 roku, poz. 244 ze zm.), Zarządzenia Nr 126/2025 Burmistrza Miasta Lubań z dnia 05 czerwca 2025 roku w sprawie podania do publicznej wiadomości wykazu nieruchomości stanowiących własność Gminy Miejskiej Lubań przeznaczonych do sprzedaży w formie przetargu
B U R M I S T R Z M I A S T A L U B A Ń
o g ł a s z a
pierwszy przetarg ustny nieograniczony
na sprzedaż lokalu mieszkalnego Nr 1 znajdującego się w budynku położonym w Lubaniu przy ul. Hutniczej 8 wraz z udziałem we współwłasności nieruchomości gruntowej (działka nr 5, AM 10, Obręb III o powierzchni 148 m2, JG1L/00016295/9)
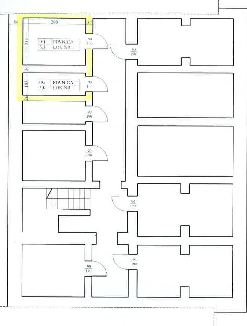
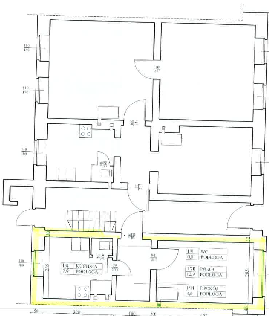
Przedmiotowy lokal mieszkalny o powierzchni użytkowej 26,20 m2 położony jest na parterze wielorodzinnego budynku mieszkalnego zlokalizowanego w Lubaniu przy ul. Hutniczej 8 i składa się z pokoju (nr 1/10) o powierzchni 12,90 m2; kuchni (nr 1/8) o powierzchni 7,90 m2; wc (nr 1/9) o powierzchni 0,80 m2 i przedpokoju (nr 1/11) o powierzchni 4,60 m2. Do lokalu mieszkalnego przynależą pomieszczenia przynależne, tj. piwnica (nr 0/1) o powierzchni 6,30 m2 i piwnica (nr 0/2) o powierzchni 3,00 m2.
Udział ułamkowy przypisany do przedmiotowego lokalu mieszkalnego z pomieszczeniami przynależnymi we współwłasności części wspólnych budynku i nieruchomości gruntowej wynosi 9,7% (97/1000).
Przedmiotowa nieruchomość nie jest obciążona długami, prawami ani roszczeniami na rzecz osób trzecich.
Układ funkcjonalny lokalu przeciętny. Stan techniczny lokalu i standard wykończenia wnętrz podstawowy. Podłogi w mieszkaniu drewniane. Ściany tynkowane, malowane. Stolarka okienna drewniana, drzwi drewniane, drzwi zewnętrzne drewniane. Wysokość pomieszczeń mieszkalnych 3,10 m. Ogrzewanie lokalu – piecowe. Funkcjonalność lokalu przeciętna, z uwagi na brak w lokalu łazienki i wejście do wc z kuchni. Przedmiotowy lokal mieszkalny znajduje się w stanie wymagającym kapitalnego remontu. Wymiany wymagają wszystkie instalacje wewnętrzne, stolarka okienna i drzwiowa oraz modernizacja systemu ogrzewania. Brak wyposażenia kuchni. Lokal mieszkalny został odłączony od siei gazowej. Licznik gazu został zdemontowany przez dostawcę mediów.
Nieruchomość gruntowa zabudowana wielorodzinnym budynkiem mieszkalnym przy ulicy Hutniczej 8 zlokalizowana jest w pośredniej strefie lokalizacyjnej miasta Lubania, bezpośrednio przy ulicy Hutniczej. Budynek trzykondygnacyjny, w zabudowie zwartej, ze strychem, w całości podpiwniczony, wzniesiony w technologii tradycyjnej na przełomie IX i XX wieku jako typowy budynek mieszkalny.
Budynek wyposażony jest w instalacje: energii elektrycznej, wodną (sieć miejska), kanalizacyjną (sieć miejska), gazową, telekomunikacyjną, ogrzewanie lokali mieszkalnych 
 – indywidualne dla lokali.
Nieruchomość posiada dostęp do drogi publicznej – ulicy Hutniczej, będącej własnością Gminy Miejskiej Lubań.
Zgodnie z Uchwałą Rady Miasta Lubania nr XVII/131/2011 z dnia 20 grudnia 2011 r. w sprawie miejscowego planu zagospodarowania przestrzennego obszaru położonego wzdłuż rzeki Kwisy ((Dz. U. Woj. Doln. 2012 roku, poz. 1443 ze zm.), przedmiotowa nieruchomość zabudowana budynkiem wielorodzinnym, położona jest na obszarze oznaczonym symbolem planu 2MW9 – tereny zabudowy mieszkaniowej wielorodzinne.
Lokal mieszkalny Nr 1 można oglądać od poniedziałku do piątku w godzinach od 12.00 do 14.00 po uprzednim telefonicznym umówieniu terminu z Dyrektorem Administracji Mieszkań Komunalnych w Lubaniu, 59–800 Lubań Plac Szarych Szeregów 4 ( tel. 75 722 26 58).
Cena wywoławcza nieruchomości stanowi kwota 80.000,00 zł (słownie: osiemdziesiąt tysięcy złotych 00/100), na którą składa się:
Wadium 10.000,00 zł (słownie: dziesięć tysięcy złotych 00/100).
Przetarg odbędzie się w dniu 11 września 2025 roku (czwartek) o godzinie 11:00 w budynku Urzędu Miasta Lubania, ul. 7 Dywizji 14, I piętro, sala Nr 11.
Zgodnie z §14 pkt.3 Rozporządzenia Rady Ministrów z dnia 14 września 2004 roku w sprawie sposobu i trybu przeprowadzenia przetargów oraz rokowań na zbycie nieruchomości (Dz. U. z 2021 roku, poz. 2213 ze zm.), postąpienie ustalone zostanie z uczestnikami przetargu i nie może wynosić mniej niż 1% ceny wywoławczej, z zaokrągleniem w górę do pełnych dziesiątek złotych. Licytacji podlegać będzie stawka wywoławcza. Przetarg jest ważny bez względu na liczbę uczestników, jeżeli chociaż jeden uczestnik zaoferuje cenę o co najmniej jedno postąpienie powyżej ceny wywoławczej.
Warunkiem wzięcia udziału w przetargu jest wpłacenie wadium najpóźniej do dnia 05 września 2025 roku włącznie na rachunek bankowy Urzędu Miasta Lubań Nr 60 2030 0045 1110 0000 0080 6550 prowadzony przez BNP Paribas Bank Polska S.A. Oddział Lubań ul. 7 Dywizji 14. Dla wpłat gotówkowych dokonywanych w Monetia Sp.z.o.o. ul. 7 Dywizji 3 w Lubaniu od dnia 12.07.2021r. pobierana jest prowizja w wysokości:
- 3,00 zł od wpłat do 1.000,00 zł
- 0,3% wpłacanej kwoty od wpłat powyżej 1.000,00 zł.
W tytule wpłaty wadium oprócz danych uczestnika przetargu należy dopisać: „Przetarg lokal Hutnicza 8/1”.
Wadium należy wnieść w pieniądzu – gotówką lub przelewem na podany powyżej rachunek bankowy Urzędu Miasta Lubań. W przypadku wpłacenia wadium w formie przelewu bankowego wpłata powinna być dokonana odpowiednio wcześniej, tak aby w dniu 05 września 2025 roku wadium znajdowało się na rachunku bankowym Urzędu Miasta Lubań. Za datę wniesienia wadium uważa się datę wpływu środków na rachunek Urzędu Miasta Lubań.
W przypadku osób fizycznych pozostających w związku małżeńskim i posiadających wspólność ustawową, wadium na przetarg należy wnosić przez oboje małżonków (w tytule wpłaty należy podać imiona i nazwiska osób przystępujących do przetargu).
Wadium wpłacone przez uczestnika przetargu, który wygrał przetarg, zalicza się na poczet ceny nabycia nieruchomości w dniu zapłaty pełnej ceny należności. Pozostałym uczestnikom przetargu wadium zostanie zwrócone w ciągu trzech dni od dnia zamknięcia przetargu.
Wadium ulega przepadkowi w razie uchylenia się uczestnika, który przetarg wygrał od podpisania umowy notarialnej.
Warunkiem udziału w przetargu jest wniesienie wadium w podanym wyżej terminie oraz:
Osoba wyłoniona w wyniku przetargu jako nabywca nieruchomości, przy zawarciu notarialnej umowy sprzedaży, obowiązana jest przedłożyć w formie aktu notarialnego pisemną zgodę współmałżonka na zawarcie umowy sprzedaży, na warunkach ustalonych w przetargu. Wymóg ten nie obowiązuje, jeżeli małżonkowie przystąpią do podpisania notarialnej umowy sprzedaży,
W przypadku, gdy osoba zainteresowana wzięciem udziału w przetargu, która spełniła warunku udziału nie może stawić się osobiście w dniu przetargu, wskazana przez nią osoba powinna okazać stosowne pełnomocnictwo. W przypadku umocowania do nabycia nieruchomości pełnomocnictwo powinno określać przedmiot czynności oraz rodzaj czynności. W pełnomocnictwie należy zatem wskazać, iż pełnomocnik jest umocowany do nabycia w imieniu mocodawcy i na rzecz mocodawcy nieruchomości stanowiących przedmiot przetargu. Pełnomocnictwo do udziału w przetargu powinno być stwierdzone dokumentem z podpisem urzędowo poświadczonym (pełnomocnictwo notarialne).
Wraz z pełnomocnictwem należy przedłożyć dowód wniesienia opłaty skarbowej w wysokości 17,00 zł (słownie: siedemnaście złotych 00/100), której należy dokonać na rachunek bankowy Nr 11 2030 0045 1110 0000 0289 2350. Od obowiązku wnoszenia opłaty skarbowej można być zwolnionym w przypadku, gdy pełnomocnikiem strony jest rodzina, zstępni, wstępni lub rodzeństwo.
Wysokość opłat i terminy ich wnoszenia:
Lokal + grunt – 100% ceny wylicytowanej na przetargu;
100% ceny uzyskanej w przetargu za lokal mieszkalny i grunt płatne przez nabywcę najpóźniej w dniu zawarcia aktu notarialnego, przed jego podpisaniem.
Poza wylicytowaną ceną za lokal mieszkalny i grunt nabywca zobowiązany jest do pokrycia kosztów zawarcia aktu notarialnego i opłat sądowych.
Zgodnie z zapisami ustawy z dnia 11 marca 2004 roku o podatku od towarów i usług 
 (Dz. U. z 2025 roku, poz. 775 ze zm.) sprzedaż lokalu wraz z udziałem we współwłasności nieruchomości gruntowej zwolniona jest z uiszczenia podatku VAT.
Informacje o zaliczkach i innych opłatach związanych z utrzymaniem nieruchomości wspólnej dotyczących przedmiotowego lokalu można uzyskać u zarządcy budynku, którym jest Lubańskie Towarzystwo Budownictwa Społecznego Sp.z.o.o. z siedzibą w Lubaniu, 
 ul. Łączna 5.
O terminie i miejscu zawarcia umowy sprzedaży nabywca zostanie powiadomiony w ciągu 21 dni od daty zamknięcia przetargu.
Jeżeli nabywca nieruchomości nie stawi się bez usprawiedliwienia w miejscu i terminie oznaczonym w zawiadomieniu, Burmistrz Miasta Lubań może odstąpić od zawarcia aktu notarialnego, a wpłacone wadium nie podlega zwrotowi.
Przetarg może być odwołany po uprzednim podaniu do publicznej wiadomości ważnych przyczyn jego odwołania.
Ogłoszenie dostępne jest na tablicy ogłoszeń w siedzibie Urzędu Miasta Lubań ul. 7 Dywizji 14, na stronie internetowej www.luban.pl w zakładce „Nieruchomości”, na stronie internetowej Biuletynu Informacji Publicznej Urzędu Miasta Lubań http://bip.miastoluban.pl oraz w Wydziale Gospodarki Gruntami, Nieruchomościami 
 i Rolnictwa Urzędu Miasta Lubań ul. 7 Dywizji 14, I piętro, pokój Nr 5, Tel.: + 48 75 646 44 22.
Szczegółowe informacje o przetargu można uzyskać w Wydziale Gospodarki Gruntami, Nieruchomościami i Rolnictwa Urzędu Miasta Lubania, ul. 7 Dywizji 14, I piętro, pokój Nr 5, tel. + 48 75 646 4422.
BURMISTRZ
MIASTA LUBAŃ
Grzegorz Wieczorek